Mẫu thiết kế nhà đẹp 2 tầng 7,5x16m này thiết kế với gam màu trắng sữa kết hợp với lam nhạt nhằm tạo cho mẫu nhà phố đẹp này vừa hài hòa vừa hiện đại. Diện tích thi công là 112m2 cho mặt bằng. Khác với các mẫu thiết kế nhà 2 tầng mái thái khác thì mẫu nhà hiện đại này có chi phí thi công tiết kiệm hơn so với lợp ngói và tôn. Nhưng sẽ nóng hơn so với kiểu nhà 2 tầng mái thái nên khi thi công xây dựng quý vị lưu ý làm trần thạch cao chống nóng hay lợp tôn cách nhiệt vừa bảo vệ mái vừa chống ẩm cho thạch cao nhé.

Mẫu thiết kế nhà đẹp 2 tầng 7,5x16m đẹp
Phương án thiết kế kiến trúc nhà 2 tầng đẹp
Về mặt kiến trúc mẫu thiết kế nhà đẹp 2 tầng này được thiết kế theo kiểu nhà phố 2 tầng mái bằng, phía trước là ban công tầng 2, phía sau là sân thượng phơi quần áo. Mẫu nhà phố này được thiết kế rất đơn giản với các góc cạnh vuông vắn, phía trước là mặt tiền gồm cửa chính đi vào phòng khách, 1 bên là gara để xe cửa cuốn. Khu cầu thang được đặt ngay cạnh gara để xe và làm cửa chớp tận dụng ánh sáng tự nhiên và tiết kiệm điện năng sử dụng cho cả nhà.
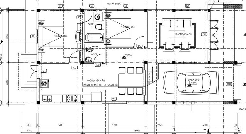
Bản vẽ mặt bằng tầng 1 nhà 2 tầng

Bản vẽ mặt bằng mẫu nhà 2 tầng hiện đại
Mặt bằng tầng 1 mẫu thiết kế nhà phố 2 tầng đẹp này được bố trí với 1 phòng khách, 1 gara xe ngay bên ngoài, bên trong là 2 phòng ngủ, 1 phòng ngủ có phòng vệ sinh riêng và 1 phòng vệ sinh chung. 1 bên là khu vực nhà ăn, nhà bếp có cửa hậu ra ngoài sân vườn phía sau.
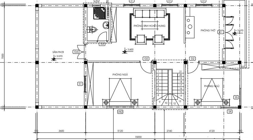
Bản vẽ mặt bằng tầng 2 mẫu nhà hiện đại 2 tầng đẹp

Bản vẽ thiết kế mặt bằng tầng 2 mẫu nhà 2 tầng hiện đại
Mặt bằng tầng 2 nhà phố được bố trí với 1 phòng sinh hoạt chung hay có thể coi là phòng khách thứ 2 cho gia đình, 1 phòng thờ cùng hướng với hướng của nhà, từ phòng thờ có mở thêm cửa đi ra ngoài ban công. 2 phòng ngủ nhỏ hai bên cầu thang. Cả tầng 2 được sử dụng chung 1 phòng vệ sinh. Phía sau nhà là sân phơi khá rộng rãi và thoải mái để phơi đồ.
Trên đây là mẫu thiết kế nhà 2 tầng 7,5x16m hiện đại đơn giản của công ty thiết kế nhà đẹp mới chúng tôi. Qúy vị vui lòng liên hệ 0975 945 433 Mr Bản để được thiết kế thi công theo dự trù tài chính mới của mình. Thân ái.!




